x
Huis van Trebius Valens
regio III, insula 2, ingang 1
Opgegraven: de ingang en voorhuis  in 1913-1915, het achterliggend huis in 1952. Zonder al te veel
interesse in "alledaagse vondsten". Ook nog eens zwaar beschadigd in WWII waar een bom de gehele
buitenkant, ingang en atrium vernietigde. Nog bedankt dappere mannen, Geallieerden en Duitsers, voor het
vernietigen van dit erfgoed!!! Nu ja, slecht beheer, toeristen en maffia doen de rest.
Het is een wonder in zichzelf dat er nog wat origineels over is...
Casa di Trebius Valens
Tr
Cu
Tr
A
Ta
P
V
Vijver in halvemaanvorm.
Waarschijnlijk in het midden op
de zuil een beeldje met fonteintje
E
C
Dit zijn twee
badruimtes.
Hierboven het
caldarium.
Onder was een
kleedhok
Na het bombardement
in WWII waren de
muren van de
voorgevel in een klap
gereduceerd tot 1 mtr.
De voorgevel van het huis. Bovenaan een
reconstructie. Dan de verkiezingsgraffiti
en als derde de restauratie (die nu eindelijk
wordt uitgevoerd)
Gezien vanuit
peristylium richting
triclinium
Tablinium gezien naar peristylium
Nogmaals tablinium
Het atrium naar
tablinium.
Ergens in huis werd dit beeldje
van Venus gevonden.
Keuken?
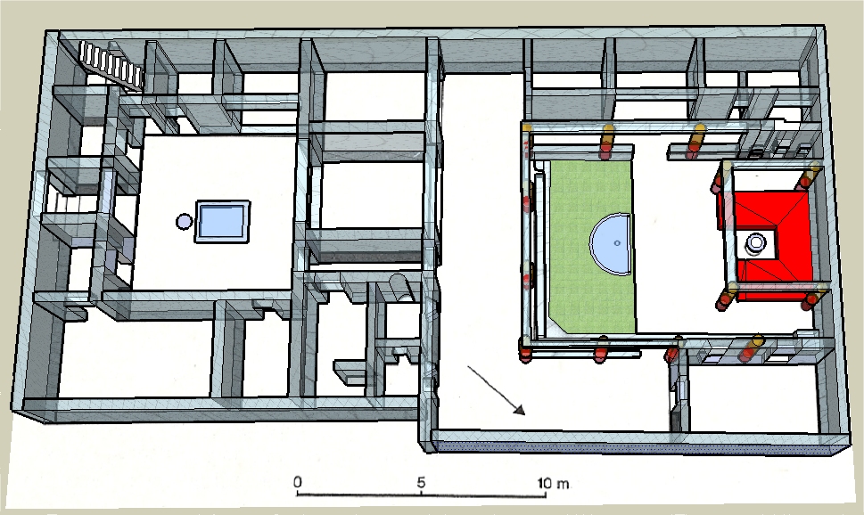
Reconstructie begane grond in SketchUp
A...Ala (zijvleugel open naar atrium)
An..Andron (gang tussen atrium en achterhuis)
At..Atrium (officiële ontvangsthal)
C...Cubiculum (slaapkamer)
Cu..Culina (keuken)
E...Exedra (tuinkamer, vaak met apsis= halfronde nis)
F...Fauces (gang tussen vestibulum en atrium)
L...Latrina (wc)
P...Peristylium (tuin met rondom zuilen en
wandelgang)
Ta..Tablinum (kantoor/studeerkamer)
T...Taberna (winkel)
Tr..Triclinium (eetkamer)
V...Vestibulum (kleinvoorportaal hoofdingang)
Delen op faceboek
Onderzoek, tekst en webdesign Sione van Walderveen